New Home in Downtown Fausett
3 Bedroom, 2 full & 1 half Bath · 1,805sqft
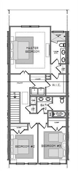
Seller is offering $10,000 in incentives! New Construction townhome in Downtown Dawsonville! End Unit, lot 1. Move-in ready. One car garage with extra parking in the driveway. First floor is open concept with family room, powder room, dining area and a beautiful kitchen (Stainless steel appliances, pendant lights over the island, white cabinetry and quartz countertops). Luxury vinyl flooring throughout the first floor. Second floor has 3 bedrooms. Huge master suite with walk-in closet is connected to the laundry room for convenience. The secondary bath has a split layout to allow multiple family members to get ready at the same time. This quiet community will have a total of 24 townhomes on a cul-de-sac road with streetlights, sidewalks and lawn care provided. Walk to downtown Dawsonville festivals and amenities including a schools, Lanier Tech, park, restaurants, grocery, and coffee shop! 10 minute drive to I-400, North Georgia Premium Outlets, Rock Creek Park and Atlanta Motorsports Park. Interior photos in listing are of similar townhome in the neighborhood.

































